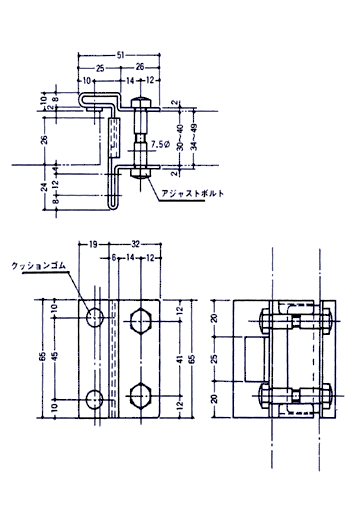
ラバトリストライク(内開)
材 質  SUS-304
仕 上  ヘアーライン
付属品  アジャストボールト T41 2ヶ
入 数  10-100SET入

戻る