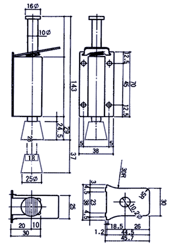
ドアホルダー
材 質  SUS-304
仕 上  ヘアーライン
  (ペダル部分・コーディング加工仕上げもあります)
入 数 10-100SET入

戻る